Nous vous proposons à la vente un très bel appartement de 3 pièces principales (duplex), situé au sein d’un immeuble du 17e siècle, sur une cour verdoyante à quelques dizaines de mètres de la rue St Andrée des Arts (quartier odéon). Ce bien exposé plein sud bénéficiant d’une superficie de 64 m2, se compose comme suit : 

Type de bien Appartement
Surface 64 m2
Nombres de pièces 3
Rèf:
Calme
Gardien
Interphone
Cour
Transports, commerces, boutiques

Grands Augustins

rue des Grands Augustins 75006

1 235 000 €

Description

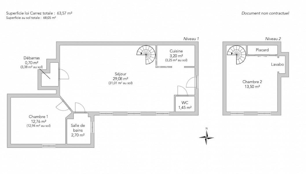
Nous vous proposons à la vente un très bel appartement de 3 pièces principales (duplex), situé au sein d’un immeuble du 17e siècle, sur une cour verdoyante à quelques dizaines de mètres de la rue St Andrée des Arts (quartier odéon). Ce bien exposé plein sud bénéficiant d’une superficie de 64 m2, se compose comme suit : Au premier niveau, un très beau séjour d’environ 30 m2, une cuisine, une grande chambre, une salle de bain, un wc séparé, un dressing. Au deuxième niveau, une chambre avec un point d’eau et un placard. Calme et lumineux, proche des commerces et transports, une cave complète ce bien unique !

Caractéristiques

  • Calme
  • Gardien
  • Interphone
  • Cour

Carte

A proximité

  • Transports, commerces, boutiques

Contactez-nous

 

Type de bien
Appartement
Surface
64 m2
Nombres de pièces
3
Rèf: